Omschrijving

Aan een rustige woonstraat in het geliefde Zeelst staat deze verrassend ruime 2-onder-1-kapwoning met vrijstaande garage, diepe oprit en een zonnige, royale achtertuin. De woning beschikt o.a. over een royale woonkamer, open keuken, drie ruime slaapkamers, een badkamer en een met vaste trap bereikbare zolderverdieping met een vierde slaapkamer en volop bergruimte.
Deze woning biedt volop mogelijkheden om naar eigen smaak te renoveren en in te richten.

INDELING:

BEGANE GROND:

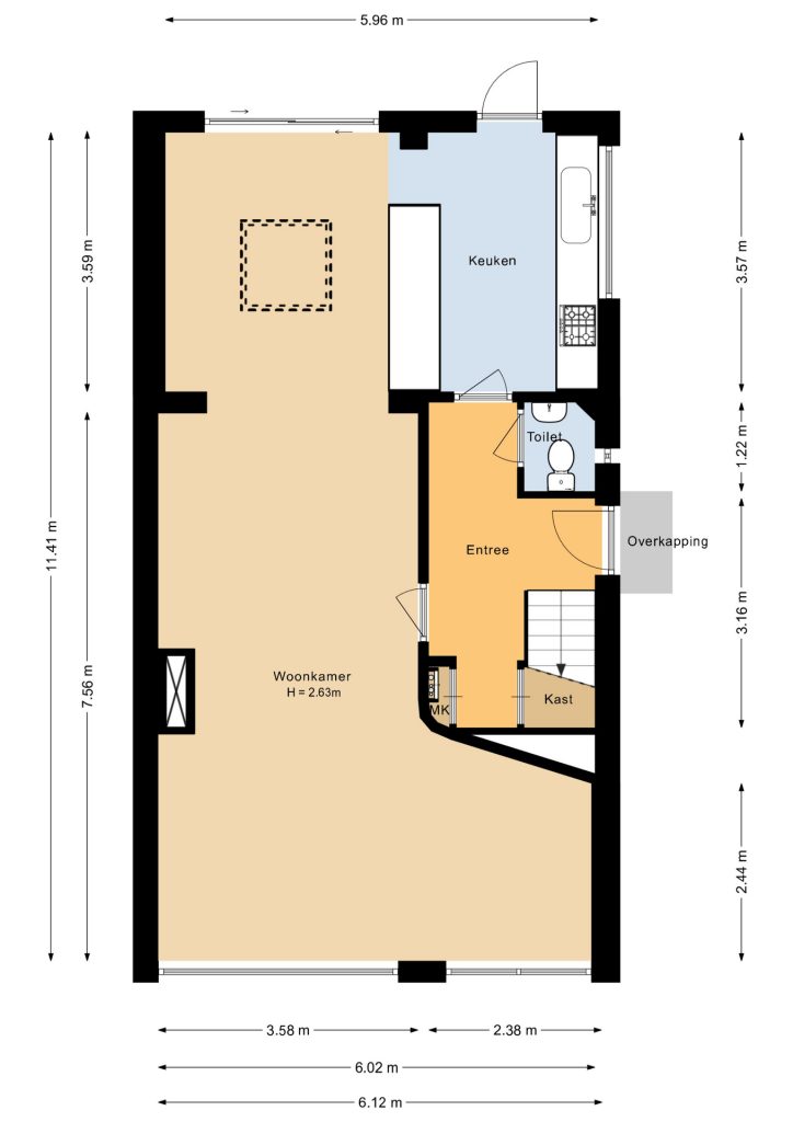
Hal
Ruime entree met toegang tot de toiletruimte, meterkast, kelderkast, woonkamer, keuken en de trapopgang naar de eerste verdieping. De hal is afgewerkt met een marmeren vloer, spachtelputz wanden en een schroten plafond.

Toiletruimte
Deels betegelde toiletruimte met staand toilet en fonteintje.

Woonkamer
Royale en sfeervolle woonkamer met open haard en een open verbinding met de keuken aan de achterzijde. De woning is aan de achterzijde uitgebouwd en voorzien van een schuifpui en een grote lichtkoepel, wat zorgt voor een aangename lichtinval. Grote raampartijen versterken het ruimtelijke gevoel. De woonkamer is afgewerkt met een marmeren vloer, spachtelputz wandafwerking en stucwerk plafondafwerking.

Keuken
Open keuken welke eenvoudig is afgewerkt; de keuken beschikt over een 4-pits gaskookplaat, afzuigkap, dubbele spoelbak, koelkast en voldoende boven- en onderkasten. Vanuit de keuken is er direct toegang tot de achtertuin.

Garage
Ruime vrijstaande garage met kanteldeur.

Achtertuin
Op het zuidwesten gelegen, diepe en zonnige achtertuin met veel privacy. Aangelegd met gazon, vaste beplanting, heggen en een achterom naar de oprit.

EERSTE VERDIEPING:
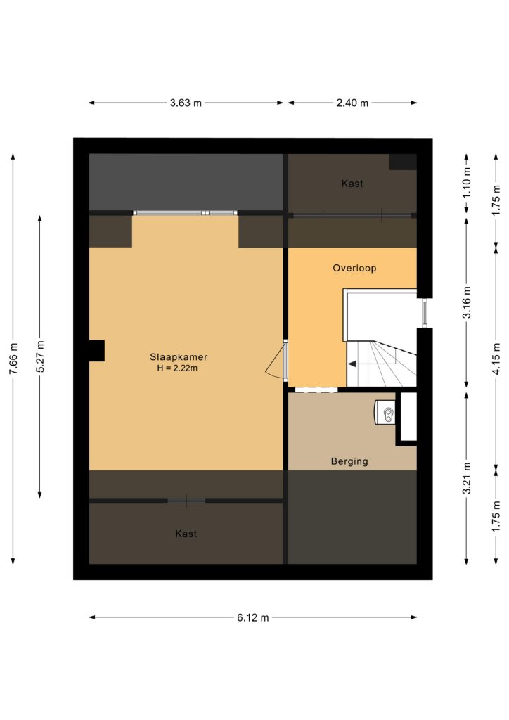
Overloop
Overloop met toegang tot de drie slaapkamers, badkamer en middels trapopgang naar de ruime zolder.

Slaapkamers
Drie slaapkamers, waarvan twee slaapkamers zijn voorzien van praktische inbouwkasten en een eigen wastafel; alle slaapkamers zijn afgewerkt met een zeilvloer, behang en stucwerk plafondafwerking.

Badkamer
Volledig betegelde badkamer, voorzien van een ruime douche met thermostaatkraan, staand toilet, wastafel en radiator.

TWEEDE VERDIEPING:
Middels een vaste trapverbinding is de royale zolderverdieping te bereiken. De verdieping bestaat uit een voorzolder met veel bergruimte, een cv-/wasruimte en toegang tot een vierde slaapkamer.

Slaapkamer
Ruime vierde slaapkamer, welke is voorzien van een grote dakkapel en met voldoende bergruimte onder de kapschuinte.

Berging/cv-ruimte
Praktische (berg)ruimte met opstelling cv-ketel (Remeha, 2023)

ALGEMEEN:
• De woning is fraai gelegen aan een rustige woonstraat in Zeelst, op korte afstand van voorzieningen zoals scholen, park, openbaar vervoer, uitvalswegen en het centrum. ASML, High Tech Campus, Flight Forum en Maxima Medisch Centrum zijn ook op korte afstand bereikbaar
• De woning is voorzien dakisolatie en is daarnaast gedeeltelijk voorzien van dubbele beglazing; de woning beschikt over een definitief energielabel D.
• De woning is volledig voorzien van rolluiken op elke verdieping.
• Koper dient rekening te houden met moderniseringskosten en gezien de leeftijd van de woning zal in de koopovereenkomst een z.g. ouderdomsclausule worden opgenomen.
• Deze woning biedt volop mogelijkheden en is beslist een bezichtiging waard; wij maken graag met u een vrijblijvende afspraak.
• N.B. De maatvoering, gebruiksoppervlakten en inhoud van deze woning zijn bepaald door een professioneel bedrijf en zijn gebaseerd op de Meetinstructie en de NEN2580. Ondanks alle zorgvuldigheid kunnen eventuele fouten niet uitgesloten worden, door meetfouten, interpretatieverschillen of beperkingen bij het inmeten. Daarom adviseren wij u dringend – indien de maatvoering, oppervlakten en/of inhoud voor u belangrijk zijn en/of bepalend voor de prijs – dit aan ons kenbaar te maken en deze meetgegevens te controleren. Wij willen u daarbij uiteraard graag helpen.

Kenmerken

  • Woonoppervlakte: 141 m2
  • Perceeloppervlakte: 439 m2
  • Slaapkamers: 4 kamers
  • Bouwjaar: 1969
Meer lezen

Kom in contact

Heb je vragen over ons aanbod? Neem dan telefonisch of per e-mail contact met ons op. Of vul het contactformulier in, en dan nemen wij zo snel mogelijk contact met je op.

"*" geeft vereiste velden aan

Dit veld is bedoeld voor validatiedoeleinden en moet niet worden gewijzigd.
Translate