Spoorwaterlaan 26
€ 400.000 k.k.Omschrijving
Aan de Spoortwaterlaan ligt deze woning op een royaal perceel met een opvallend ruime achtertuin en garage/carport en berging. Met drie slaapkamers en een praktische indeling biedt de woning een goede basis voor kopers die willen klussen en moderniseren. Ideaal voor starters of gezinnen die een woning naar eigen smaak willen realiseren en volop van buitenruimte willen genieten.
Indeling
Begane grond
Hal
Entree met meterkast, trapopgang naar de eerste verdieping en toegang tot het toilet en de woonkamer. In de hal bevindt zich tevens een verdiepte kelderkast met wateraansluiting.
Toilet
Toiletruimte met staand toilet, fonteintje en raam.
Woonkamer
Doorzonwoonkamer met een laminaatvloer. Aan de voorzijde is de woning voorzien van kunststof kozijnen met dubbele beglazing. Aan de achterzijde zijn houten kozijnen aanwezig. In de woonkamer bevindt zich een haard.
Keuken
Gesloten keuken met keukenblok en afzuigvoorziening. De keuken heeft een betonnen vloer met tegelafwerking en biedt directe toegang tot de achtertuin.
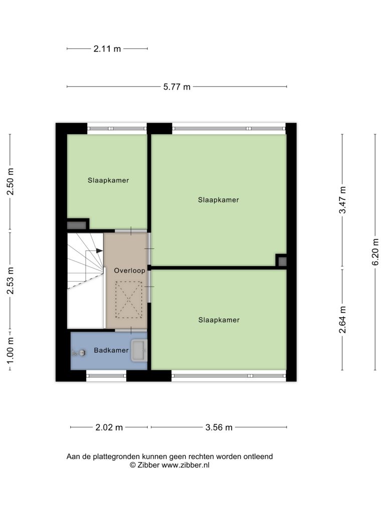
Eerste verdieping
Overloop
Met toegang tot drie slaapkamers en de badkamer.
Slaapkamers
Slaapkamer 1: Gelegen aan de voorzijde, voorzien van vloerbedekking en kunststof kozijnen met dubbele beglazing.
Slaapkamer 2: Gelegen aan de achterzijde, met vloerbedekking en houten kozijnen.
Slaapkamer 3: Eveneens aan de achterzijde, voorzien van laminaatvloer. In deze kamer is een deel van het rookkanaal zichtbaar.
Badkamer
Badkamer voorzien van inloopdouche, vaste wastafel en designradiator. De badkamer beschikt over houten kozijnen.
Zolder
Bergzolder
Via een vlizotrap bereikbare bergzolder. Naar verwachting bevindt zich hier de cv-installatie. Geschikt als extra bergruimte.
Tuin en garage
Tuin
Zeer brede, volledig omsloten achtertuin met een berging, achterom en veel privacy. Het royale perceel biedt volop mogelijkheden voor uitbouw, terrassen of een grote tuinindeling.
Garage / carport
Aan de zijkant van de woning bevindt zich een garage/carport. Voorzien van een stalengaragedeur met loopdeur.
Algemeen
Hoekwoning
Ruime eengezinswoning
Opvallend brede achtertuin met achterom
Garage / carport aanwezig
Drie slaapkamers
Zeer geschikt voor klussen en modernisering
Veel mogelijkheden om de woning naar eigen wens in te richten
Rustige ligging
Benieuwd naar deze woning? Maak een vrijblijvende bezichtiging!
N.B. De maatvoering, gebruiksoppervlakten en inhoud van deze woning zijn bepaald door een professioneel bedrijf en zijn gebaseerd op de Meetinstructie en de NEN2580. Ondanks alle zorgvuldigheid kunnen eventuele fouten niet uitgesloten worden. Indien deze gegevens voor u van belang zijn, adviseren wij u deze te controleren. Wij helpen u hier uiteraard graag bij.
Kenmerken
- Woonoppervlakte: 72 m2
- Perceeloppervlakte: 460 m2
- Slaapkamers: 3 kamers
- Bouwjaar: 1963