Omschrijving

In het gezellig City Centrum gelegen, volledig gerenoveerd (‘20/’21), ruim 3-kamerappartement op de 1e verdieping met sfeervolle woonkamer, open keuken, twee slaapkamers, royale badkamer, groot terras op het zuidwesten en een berging op de begane grond.

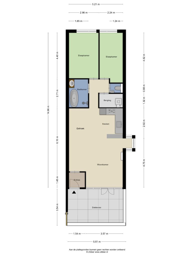
INDELING:

BEGANE GROND:

Berging
Op de begane grond gelegen berging met elektra en meterkast.

1E WOONLAAG:

Via twee trapopgangen en galerij toegang tot het appartement.

INDELING APPARTEMENT:

Hal
Hal met toegang naar de woonkamer.

Woonkamer
Sfeervolle woonkamer met openslaande terrasdeuren en ruim zicht op het dakterras; de woonkamer is afgewerkt met een fraaie laminaatvloer met laminaatvloer en stucwerk wand- en plafondafwerking.

Keuken
Moderne, open keuken met een nette hoekinrichting en houten aanrechtblad. De keuken is voorzien van een spoelbak met mengkraan, gaskookplaat met afzuiging, oven, koel-vriescombinatie, vaatwasser, voldoende opbergkasten en praktische eetbar.

Portaal
Portaal met toegang naar slaapkamers, badkamer, toilet en wasruimte/berging.

Slaapkamers
Twee slaapkamer, afgewerkt met een laminaatvloer.

Badkamer
Luxe, royale betegelde badkamer voorzien van een badmeubel met waskom, grote inloopdouche met rainshower, drain en thermostaatkraan, ligbad en inbouwspots.

Toilet
Luxe, betegelde toiletruimte met wandcloset en fonteintje.
?
Berging/wasruimte
Inpandige berging met opstelling cv-combiketel (ca. 2020) en aansluiting wasapparatuur.

Dakterras
Royaal en zonnig dakterras van 18m2.

ALGEMEEN:

• Het appartement is fraai en gunstig gelegen op een centrale locatie in het gezellige City-Centrum van Veldhoven, nabij alle voorzieningen zoals winkels, supermarkten, openbaar vervoer, gemeentehuis, theater, restaurants en terrassen, etc.
• Het appartement is in 2020/2021 volledig gereoneerd.
• Parkeren kan op de algemene parkeerplaats met een parkeervergunning van € 18,- per jaar voor de eerste auto (en € 36,- per jaar voor de tweede auto)
• Het appartement is voorzien van een groot dakterras (ca. 18 m² op het Zuidwesten)
• Gehele appartement voorzien van vloerverwarming, dubbele beglazing, tevens dakisolatie aanwezig
• Een koper wordt automatisch lid van de Vereniging van Eigenaren, de maandelijkse servicekosten bedragen ca. € 163,00. Hierin zijn o.a. inbegrepen de reservering voor waterverbruik, groot onderhoudskosten, schoonmaak gezamenlijke ruimten en opstalverzekering
• Met serieuze gegadigden maken wij graag een afspraak voor een vrijblijvende bezichtiging
• N.B. De maatvoering, gebruiksoppervlakten en inhoud van deze woning zijn bepaald door een professioneel bedrijf en zijn gebaseerd op de Meetinstructie en de NEN2580. Ondanks alle zorgvuldigheid kunnen eventuele fouten niet uitgesloten worden, door meetfouten, interpretatieverschillen of beperkingen bij het inmeten. Daarom adviseren wij u dringend – indien de maatvoering, oppervlakten en/of inhoud voor u belangrijk zijn en/of bepalend voor de prijs – dit aan ons kenbaar te maken en deze meetgegevens te controleren. Wij willen u daarbij uiteraard graag helpen.

Kenmerken

  • Woonoppervlakte: 79 m2
  • Slaapkamers: 2 kamers
  • Bouwjaar: 1978
Meer lezen

Kom in contact

Heb je vragen over ons aanbod? Neem dan telefonisch of per e-mail contact met ons op. Of vul het contactformulier in, en dan nemen wij zo snel mogelijk contact met je op.

"*" geeft vereiste velden aan

Dit veld is bedoeld voor validatiedoeleinden en moet niet worden gewijzigd.
Translate