Omschrijving

Zeer gunstig en centraal gelegen 4-kamer appartement (type maisonette) met een heerlijk zonnig terras én een eigen garage. Het appartement ligt aan de rand van het Veldhovense Citycentrum, met alle gewenste voorzieningen binnen handbereik.

Het appartement biedt veel natuurlijke lichtinval, is ruimtelijk ingedeeld en beschikt over veel opbergruimte.

INDELING:

BEGANE GROND:

Hal
Ruime ontvangsthal met toegang tot de trapopgang naar de eerste verdieping, de toiletruimte en de bijkeuken. De hal biedt tevens ruimte voor een garderobe of extra kast.

Toilet
Volledig betegelde toiletruimte met staand toilet en fonteintje.

Bijkeuken
Praktische bijkeuken met aansluiting voor wasmachine en droger, meterkast en volop bergruimte. Er is tevens plaats voor een extra koelkast of vriezer. Vanuit de hal is er toegang tot de woonkamer.

Woonkamer
Sfeervolle woonkamer met grote raampartijen aan de achterzijde, waardoor er veel natuurlijk licht binnenvalt. De woonkamer is voorzien van een laminaatvloer, stucwerk wand- en plafondafwerking; en beschikt over een praktische trapkast. Vanuit de woonkamer is er tevens toegang tot het zonnige terras.

Keuken
De open keuken in hoekopstelling is compleet uitgerust met gaskookplaat, afzuigkap, hete-luchtoven, vaatwasser, ingebouwde koelkast en vriezer. Dankzij het grote raam is er ook hier veel lichtinval. Het kunststof werkblad en de diverse boven- en onderkasten bieden volop werk- en bergruimte.

Terras
Vanuit de woonkamer bereik je het zonneterras, gelegen op het Zuiden en met volop privacy.

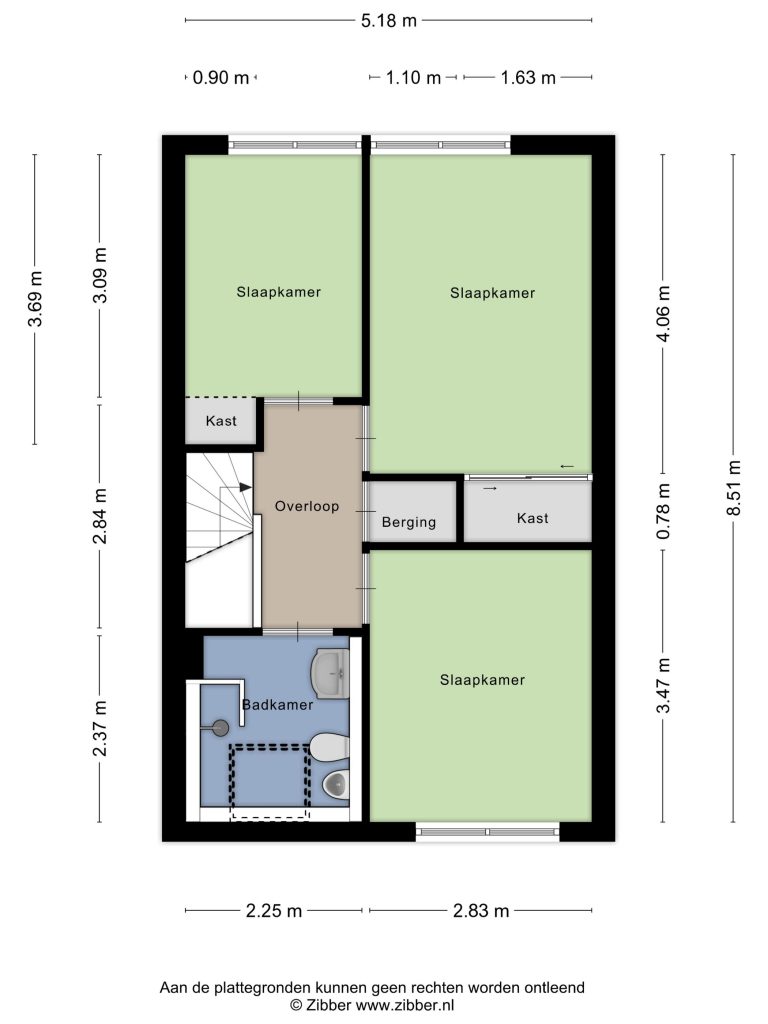
EERSTE VERDIEPING

Ruime overloop met toegang tot drie slaapkamers, een praktische bergkast en de badkamer. De gehele verdieping is voorzien van een laminaatvloer en stucwerk wand- en plafondafwerking.

Slaapkamers
Drie comfortabele slaapkamers welke zijn afgewerkt met laminaat en stucwerk wand- en plafonafwerking. Alle slaapkamers zijn heerlijk licht en ruim. De slaapkamers gelegen aan de achterzijde van de woning zijn voorzien van extra bergruimte middels praktische inbouwkasten.

Badkamer
Volledig betegelde badkamer met douche voorzien van thermostaatkraan, hangend toilet, bidet, wastafelmeubel met spiegel en designradiator. Het Velux dakraam zorgt voor een prettige natuurlijke lichtinval.

ALGEMEEN:

• Het appartement is gunstig gelegen aan de rand van het Veldhovense City Centrum, op loopafstand van winkels, theater, zwembad, bibliotheek, etc. Verder ligt het appartement centraal in Veldhoven en op steenworp afstand van het Openbaar Vervoer en snelwegen.

• Het appartement is volledig geïsoleerd en voorzien van dubbele beglazing.

• Het appartement beschikt over een definitief energielabel C.

• Een koper wordt automatisch lid van de Vereniging van Eigenaren, de maandelijkse servicekosten bedragen ca. € 160 ,-. Hierin zijn o.a. inbegrepen de reservering voor groot onderhoudskosten, glas- en opstalverzekering.

• Parkeren kan op de algemene parkeerplaats, betalingsontheffing middels een parkeervergunning van € 36,- per jaar, aan te vragen bij de gemeente Veldhoven.

• N.B. De maatvoering, gebruiksoppervlakten en inhoud van deze woning zijn bepaald door een professioneel bedrijf en zijn gebaseerd op de Meetinstructie en de NEN2580. Ondanks alle zorgvuldigheid kunnen eventuele fouten niet uitgesloten worden, door meetfouten, interpretatieverschillen of beperkingen bij het inmeten. Daarom adviseren wij u dringend – indien de maatvoering, oppervlakten en/of inhoud voor u belangrijk zijn en/of bepalend voor de prijs – dit aan ons kenbaar te maken en deze meetgegevens te controleren. Wij willen u daarbij uiteraard graag helpen.

Kenmerken

  • Woonoppervlakte: 90 m2
  • Slaapkamers: 3 kamers
  • Bouwjaar: 1978
Meer lezen

Kom in contact

Heb je vragen over ons aanbod? Neem dan telefonisch of per e-mail contact met ons op. Of vul het contactformulier in, en dan nemen wij zo snel mogelijk contact met je op.

"*" geeft vereiste velden aan

Dit veld is bedoeld voor validatiedoeleinden en moet niet worden gewijzigd.
Translate